Cam A Still.jpg

PipeWork CAD Design

Delta Design has a wide range of experience in the design of industrial pipework. From skid mounted modules, packaged plant rooms to large industrial boiler / power plants. Full industrial boiler plant design from initial P & ID's to layout drawings, 3D visualisation, shop floor manufacturing drawings, pipe stress analysis and structural calculations.

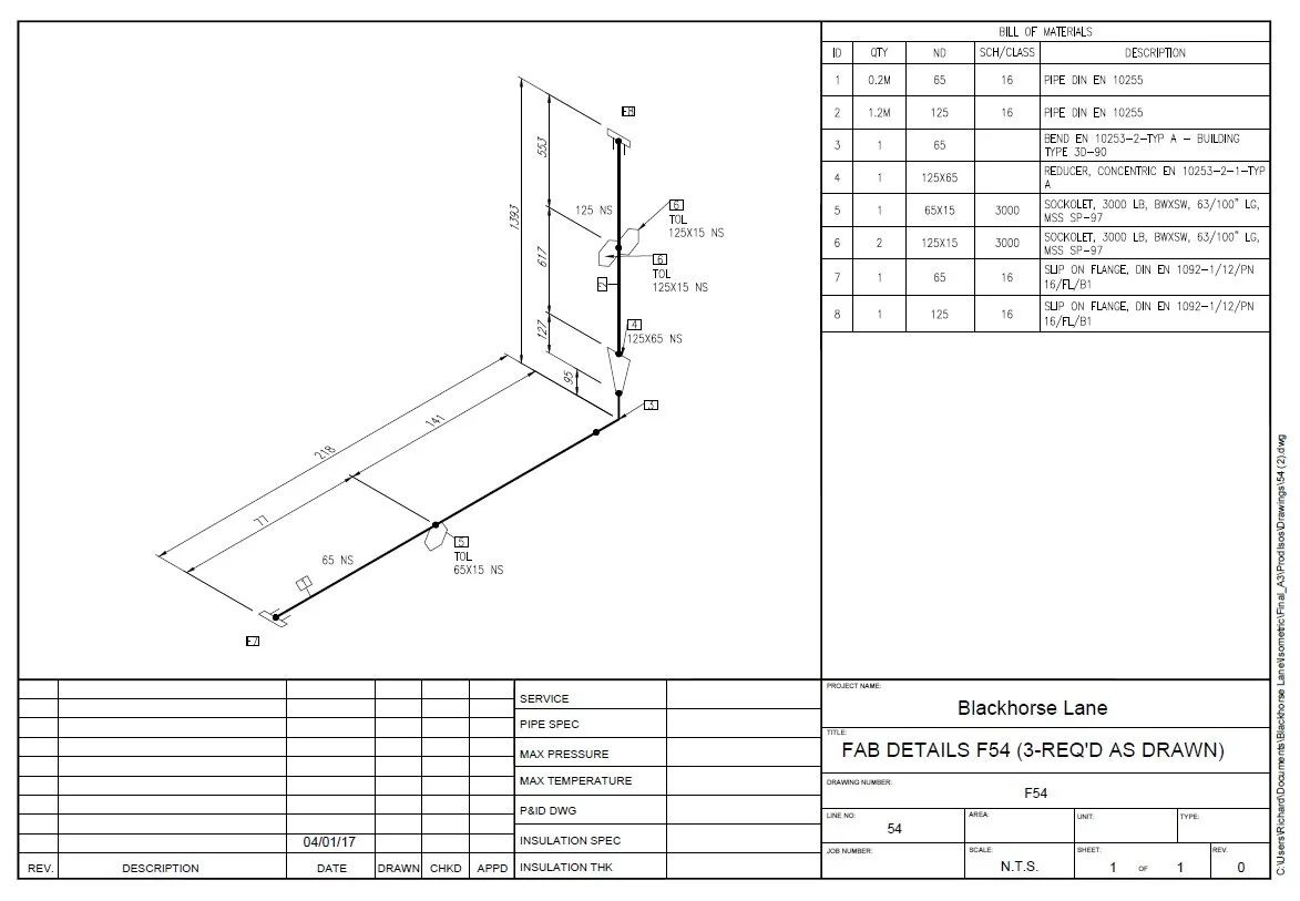
Pipe spool Fabrication drawings

Isometric pipe spool fabrication drawings created using Autocad Plant 3D.

Pipe spool 1.jpg
Pipe spool 2.jpg

Customer Case Study

Cam A Still.jpg

View project here

 

Contact us for more information